Darum lohnt sich der Fensterwechsel: Investition in Komfort und Wert
Alte Fenster sind oft wahre Energiefresser und beeinträchtigen das Wohlbefinden in Ihrem Zuhause. Die Erneuerung Ihrer Fenster ist eine der lohnendsten Investitionen, die Sie in Ihre Immobilie tätigen können.
Eine Familie sitzt im warmen Wohnzimmer hinter einem Fenster mit einem Symbol für Heizkosten sparen und Energieeffizienz.
💰
Sparen Sie Energiekosten sofort
Moderne Fenster mit hochdämmenden Profilen und Mehrfachverglasung (z. B. 3-fach-Verglasung) reduzieren den Wärmeverlust massiv. Deutliche Senkung der Heizkosten: Wärme bleibt im Winter drinnen, teure Heizenergie geht nicht länger ungenutzt verloren. Optimaler Hitzeschutz im Sommer: Die Hitze bleibt draußen – das sorgt für ein angenehmeres Raumklima, oft ohne teure Klimaanlage.
🛡️
Mehr Sicherheit und Ruhe
Alte Fenster sind oft leicht aufzuhebeln und bieten wenig Schutz vor Außenlärm. Erhöhter Einbruchschutz: Moderne Fenster sind standardmäßig mit sicheren Pilzkopfverriegelungen ausgestattet, die Einbrechern das Leben schwer machen. Effektiver Schallschutz: Lärm von Straßen, Zügen oder Nachbarn wird durch spezielle Schallschutzverglasungen stark reduziert – für mehr Ruhe und Lebensqualität.
Steigerung des Wohnkomforts und Werts
Neue Fenster verbessern nicht nur die Energiebilanz, sondern auch das tägliche Wohnerlebnis. Keine Zugluft und kalten Oberflächen: Moderne Rahmen dichten perfekt ab und verhindern Kondenswasserbildung (Schutz vor Schimmelbildung). Optische Aufwertung: Neue Fenster und Türen verleihen Ihrer Fassade und Ihren Innenräumen ein frisches, modernes Aussehen und steigern den Gesamtwert Ihrer Immobilie.
Fazit:
Durch neue Fenster investieren Sie in eine bessere Energieeffizienz, mehr Sicherheit und einen nachhaltig höheren Wohnwert.
Vier Bauarbeiter installieren ein weißes Fenster in eine helle Wand.
Saubere und fachgerechte montage
Fenster und Türen sind nur so gut wie ihre Montage. Selbst das hochwertigste Fensterprofil kann seine Leistung nicht entfalten, wenn es unsachgemäß eingebaut wird. Die fachgerechte Montage ist das Herzstück unserer Arbeit und der Schlüssel zu allen versprochenen Vorteilen.
Wir sorgen dafür, dass die theoretische Leistung Ihrer neuen Fenster und Türen auch in der Praxis erreicht wird.
  • Dauerhafte Dichtigkeit: Wir verwenden das 3‒Ebenen‒Abdichtungsprinzip (innen dichter als außen), um Feuchtigkeit, Wind und Lärm dauerhaft fernzuhalten.
  • Volle Energieeffizienz: Wir stellen sicher, dass alle Dämmwerte (U‒Werte) erreicht werden und der Anschluss ans Mauerwerk optimal isoliert ist.
  • Funktionssicherheit: Durch präzise Ausrichtung und Einstellung garantieren wir eine leichte, dauerhaft einwandfreie Funktion Ihrer Elemente.
Vertrauen Sie auf unsere Expertise: Nur die professionelle Montage sichert Ihnen alle Vorteile Ihrer Investition von der Energieeinsparung bis zum Einbruchschutz.
Gute Beratung: Die Basis für Ihre perfekte Lösung
Fenster, Türen und Sonnenschutz sind komplexe Produkte, die perfekt auf Ihre Bausituation und Ihre individuellen Bedürfnisse abgestimmt sein müssen.
  • Bedarfsanalyse: Wir hören Ihnen genau zu, um zu verstehen. Lassen Sie uns gemeinsam die beste Lösung für Ihren Komfort und Ihre Energiebilanz entwickeln. Wir machen Ihre Wünsche messbar und umsetzbar.
  • Fachwissen nutzen: Wir navigieren Sie durch die Vielfalt an Materialien (Holz, Kunststoff, Alu), Verglasungen (2‒fach, 3‒fach) und Förderprogrammen.
  • Fehlkäufe vermeiden: Wir zeigen Ihnen, welche Lösung technisch optimal und langfristig die wirtschaftlichste Entscheidung für Ihr Zuhause ist.
Kunststoff‒Fenster
Vorteile von Kunststofffenstern
Kunststofffenster überzeugen durch ihre hohe Energieeffizienz, lange Lebensdauer und ein ausgezeichnetes Preis‒Leistungs‒Verhältnis. Sie bieten sehr gute Wärmedämmung, sind witterungsbeständig, pflegeleicht und formstabil. Zudem lassen sie sich vielseitig gestalten und tragen durch ihre gute Schalldämmung zu mehr Wohnkomfort bei.
Ein schwarzes Fenster mit Blick auf ein Haus mit rotem Dach und grüne Bäume.
Schnittansicht eines schwarzen Fensterrahmens mit rotem Isoliermaterial und drei Glasschichten.
Schnittansicht eines braunen Holzfensterrahmens mit dreifacher Verglasung und roten Verstärkungen.
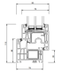
Querschnitt eines weißen Kunststofffensterrahmens mit Dreifachverglasung und roten Dichtungen.
Ein schwarzes Fenster mit Blick auf ein Haus mit rotem Dach und grüne Bäume.
Schnittansicht eines schwarzen Fensterrahmens mit rotem Isoliermaterial und drei Glasschichten.
Holz‒Fenster
Vorteile von Holzfenstern
Holzfenster stehen für natürliche Ästhetik, hohe Wohnqualität und Nachhaltigkeit. Das Material sorgt für eine hervorragende Wärmedämmung, ein angenehmes Raumklima und eine zeitlose Optik. Zudem sind Holzfenster langlebig, reparaturfähig und bieten durch vielfältige Oberflächen und Farben große gestalterische Freiheit.
Helles Schlafzimmer mit Holzbett, Beistelltisch mit Lampe und einem großen Fenster mit Blick auf grüne Bäume.
Querschnitt eines Holzfensterrahmens mit Dreifachverglasung, Dichtungen und Isolierung.
Schnitt durch ein Holzfensterprofil mit Dreifachverglasung und Aluminiumverkleidung.
Helles Schlafzimmer mit Holzbett, Beistelltisch mit Lampe und einem großen Fenster mit Blick auf grüne Bäume.
Querschnitt eines Holzfensterrahmens mit Dreifachverglasung, Dichtungen und Isolierung.
Schiebe‒Elemente
Vorteile von Hebeschiebefenstern
Hebeschiebefenster ermöglichen großzügige Glasflächen und lichtdurchflutete Räume. Trotz großer Elemente lassen sie sich leicht und komfortabel bedienen. Sie bieten eine sehr gute Wärme- und Schalldämmung, eine hohe Dichtigkeit sowie schwellenarme Übergänge für mehr Wohnkomfort. Zudem schaffen sie eine elegante Verbindung zwischen Innen- und Außenbereich.
Moderne Terrassentür mit der Aufschrift „IGLO EDGE SLIDE, MODERNES TERRASSENSYSTEM“.
Schnittdarstellung eines schwarzen Kunststofffensterrahmens mit Dreifachverglasung und roten Dichtungen.
Eine Terrasse mit Holzfußboden führt zu einer Glasschiebetür, die in ein Esszimmer blickt, mit Blick auf einen See.
Moderne Terrassentür mit der Aufschrift „IGLO EDGE SLIDE, MODERNES TERRASSENSYSTEM“.
Schnittdarstellung eines schwarzen Kunststofffensterrahmens mit Dreifachverglasung und roten Dichtungen.
Sonnen‒ & Insektenschutz
Vorteile von Sonnen- & Insektenschutz
Rollläden bieten maximalen Schutz (Einbruch, Lärm) und hervorragende Isolation zur Senkung der Energiekosten (Heizen/Kühlen) sowie komplette Verdunkelung. Raffstores (Außenjalousien) ermöglichen eine präzise, flexible Lichtlenkung und effizienten Hitzeschutz, erhalten den Ausblick und verleihen Ihrer Fassade ein modernes Design.
Insektenschutz kann perfekt in Ihre neuen Fenster integriert werden (als Rollo, Spannrahmen oder Schiebeanlage) und ermöglichen es Ihnen, jederzeit frische Luft zu genießen, während lästige Insekten und auch Pollen zuverlässig draußen bleiben.
Welches die passende Lösung für Ihr Zuhause ist, besprechen wir gerne in einem unverbindlichen Beratungsgespräch.
Ein graues Fliegengitter mit einem schwarzen Rahmen.
Fenster mit einem teilweise heruntergelassenen, anthrazitfarbenen Rollladen und einem hellgrauen Rollladenkasten.
Ein grauer Fensterladen mit horizontalen schwarzen Lamellen und einem schwarzen Rahmen.
Weißer Rollladen mit horizontalen Lamellen und Gehäuse auf weißem Hintergrund.
Ein graues Fliegengitter mit einem schwarzen Rahmen.
Fenster mit einem teilweise heruntergelassenen, anthrazitfarbenen Rollladen und einem hellgrauen Rollladenkasten.
Zweistöckiges weißes Einfamilienhaus mit beleuchteten Fenstern und Gehweg bei Dämmerung.
Terrasse mit Holzboden, Glas-Schiebetüren, die zu einem Esszimmer führen, und Blick auf Bäume und Wasser.
Weißes Cabriolet parkt auf gepflasterter Einfahrt vor einem Einfamilienhaus aus roten Ziegeln mit grauem Dach.
Modernes Haus mit weißen Wänden, schwarzen Jalousien und einer kleinen Palme in einem Topf auf gepflastertem Weg.
Weißes Haus mit dunklem Dach, Rollläden an Fenstern, Balkonen und Terrassentür, auf einer Terrasse mit Tisch und Stühlen.
Modernes Wohnzimmer mit grauen Sofas, schwarzem Couchtisch und großen Glasfenstern, die auf einen Balkon führen.
Blaues Fenster und offene Tür über orangen Wellen mit Text „RHEINBLICK FENSTER UND HAUSTÜREN“.
Mit mehr als 20 Jahren Erfahrung sind wir Ihr vertrauenswürdiger Partner für hochwertige Fenster und Haustüren aus Frechen für die Region.
Unsere Mission ist es, Ihr Zuhause sicherer, energieeffizienter und schöner zu machen. Mit Leidenschaft und Präzision setzen wir auf Qualität, die hält.
Wir würden uns freuen, Sie als nächsten Kunden zu begeistern!
Häufig gestellte Fragen
Hier finden Sie Antworten auf die wichtigsten Fragen rund um unsere Produkte und Dienstleistungen.
Welche Arten von Fenstern bieten Sie an
Wir bieten eine breite Palette an Fenstern aus Kunststoff, Aluminium und Holz, in verschiedenen Designs und mit unterschiedlichen Verglasungen.
wie lange sind die lieferzeiten
Diese können unterschiedlich ausfallen, je nach Material und gewählter Zusatzausstattung. Fenster in der Standardausführung haben bei uns in der Regel eine Lieferzeit von 3 Wochen.
Wie lange dauert die Installation
Die Dauer hängt von den Gegebenheiten vor Ort, der Anzahl und Art der zu installierenden Fenster und Türen ab. In unserem Beratungsgespräch können wir Ihnen eine erste Einschätzung geben.
Bieten Sie auch Reparaturen an
Ja, wir bieten umfassende Reparatur- und Wartungsdienste für alle von uns installierten Produkte an.
sind die fenster und haustüren förderfähig
Ja, es gibt verschiedene staatliche Förderprogramme für den Einbau energieeffizienter Fenster. Wir beraten Sie gerne dazu.
Was ist mit den anfallenden nebenleistungen nach dem fenstertausch
Auch hier bieten wir Ihnen einen rundum Service an und übernehmen gerne die gesamte Planung und Koordination. Vom Elektroanschluss bis zu den Verputz- und Malerarbeiten.
was ist mit sonnen- und insektenschutz
Diese können Sie im Zuge der Fenstersanierung gleich mitbestellen bei uns. Auch hier beraten wir Sie gerne umfangreich.

Noch Fragen?
Gerne stehen wir Ihnen mit Rat und Tat zur Seite. Wir freuen uns auf Ihre Kontaktaufnahme!
Sichern Sie sich Ihr kostenloses Angebot!
Erhalten Sie eine maßgeschneiderte Beratung und ein unverbindliches Angebot für Ihre neuen Fenster und Türen.
Eine beige Haustür, ein Rollladenfenster und ein Garagentor mit horizontalen schwarzen Streifen
Individuelle Beratung
Wir analysieren Ihre Bedürfnisse und finden die perfekte Lösung für Ihr Zuhause.
Transparente Kosten
Keine versteckten Kosten – Sie erhalten ein detailliertes und nachvollziehbares Angebot.
Wir freuen uns auf Sie!
Füllen Sie das Formular aus, und wir melden uns umgehend bei Ihnen, um Ihr Projekt zu besprechen.
Ein lächelnder Mann in Hemd und Hose zeigt einen Daumen hoch vor einem modernen Haus.
Ihre Anfrage
Was soll erneuert werden?